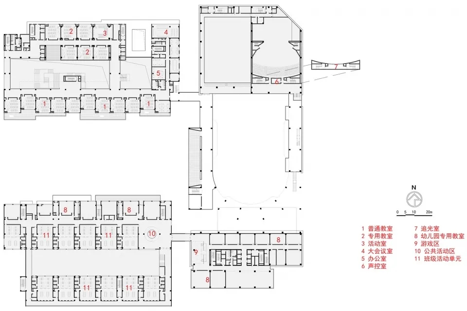
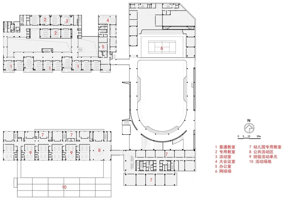
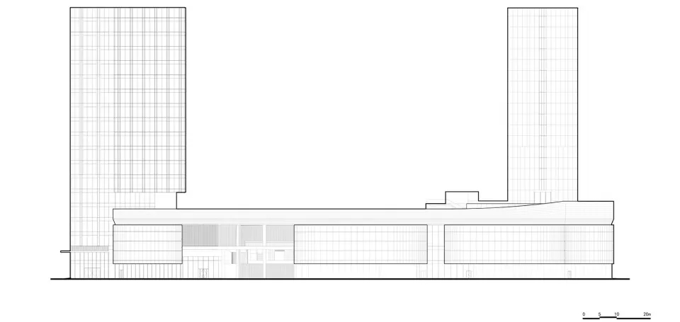
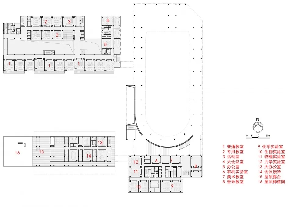
拥有抬升操场的校园(十三)——城市梦剧场 – 上海金鼎平和学校 c+d设计中心银狐1个月前更新关注私信04813 © 版权声明文章版权归作者所有,未经允许请勿转载。THE END校园空间 喜欢就支持一下吧点赞13 分享QQ空间微博QQ好友海报分享复制链接收藏
暂无评论内容