AI智能摘要
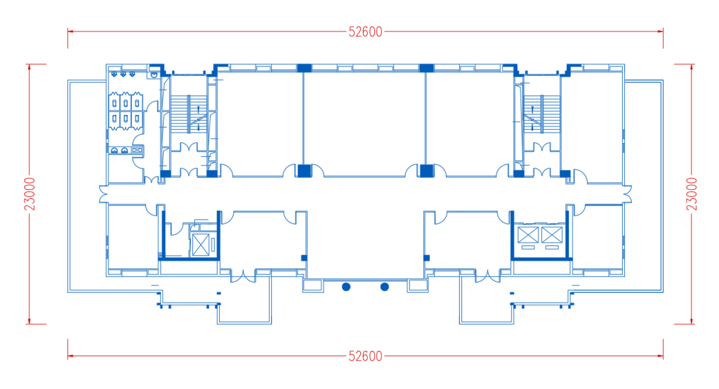
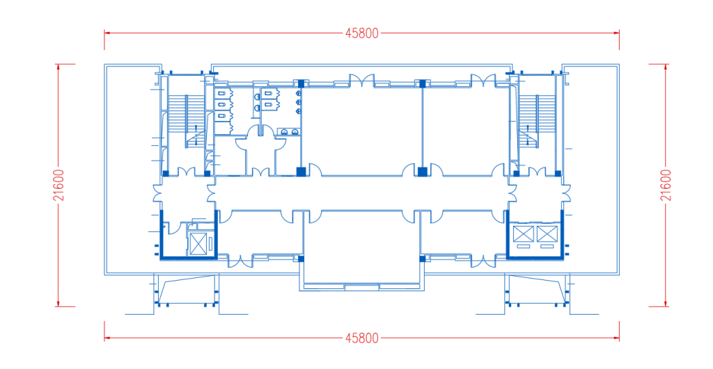
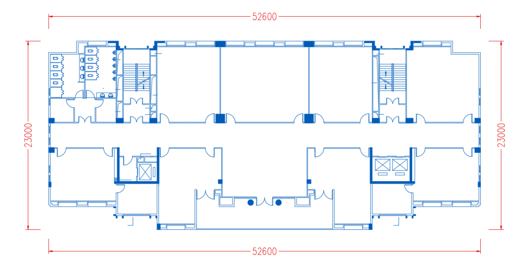
文章介绍了两个教育建筑的设计案例,分别为某学生活动中心和某大学技术科学楼,并提供了相关CAD文件下载。重点展示了一张地下二层平面图,图中以规整的布局呈现了功能区域划分,采用蓝色线条清晰标注各类房间,体现教育建筑在空间利用上的合理性与功能性,符合专题分析需求。
— 此摘要由AI分析文章内容生成,仅供参考。
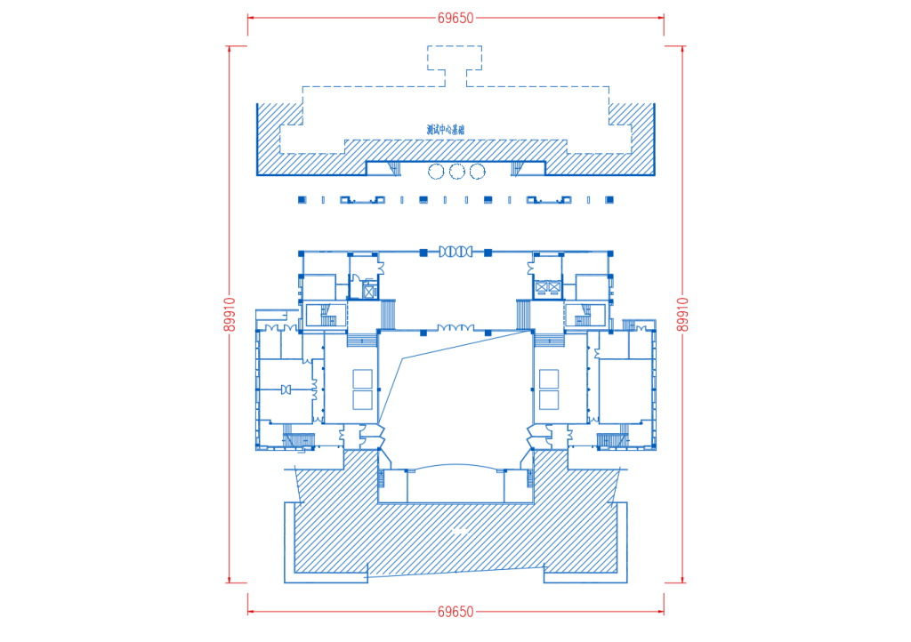
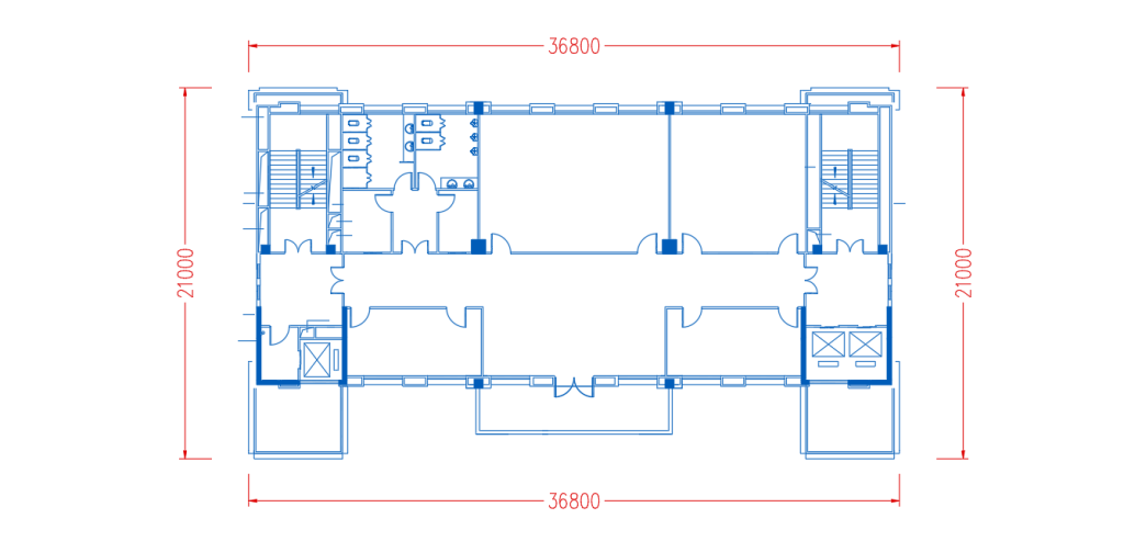
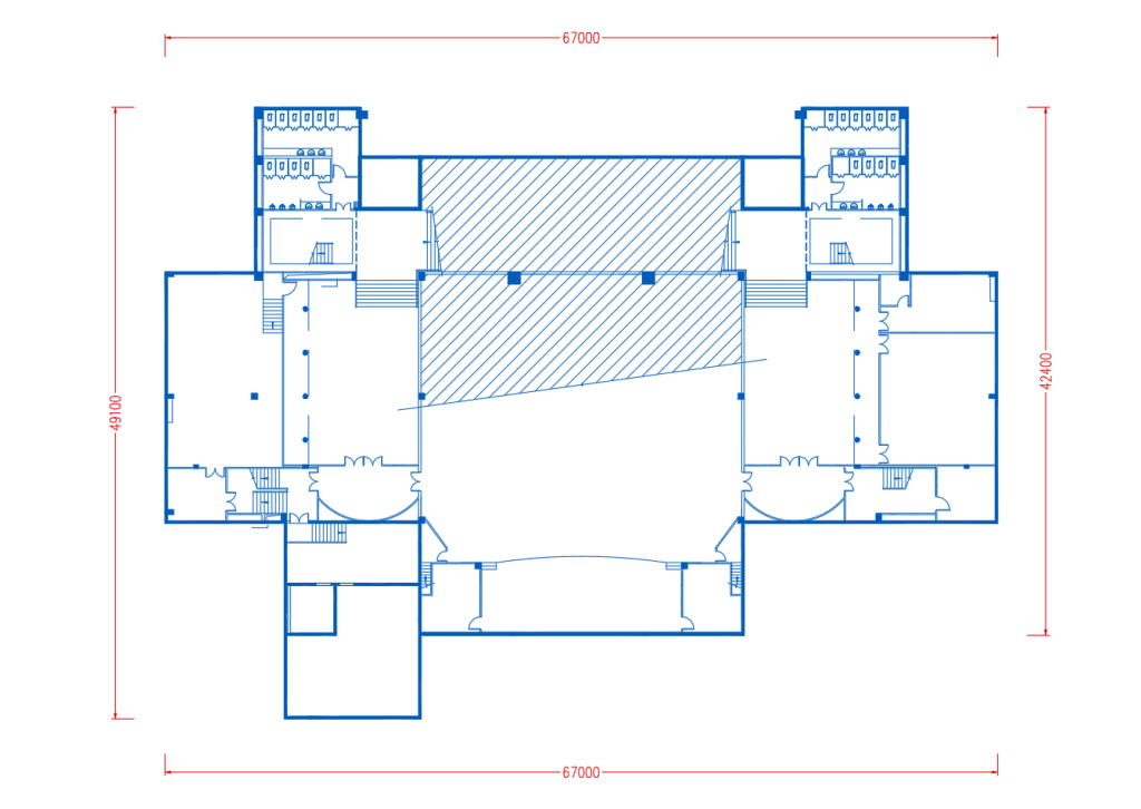
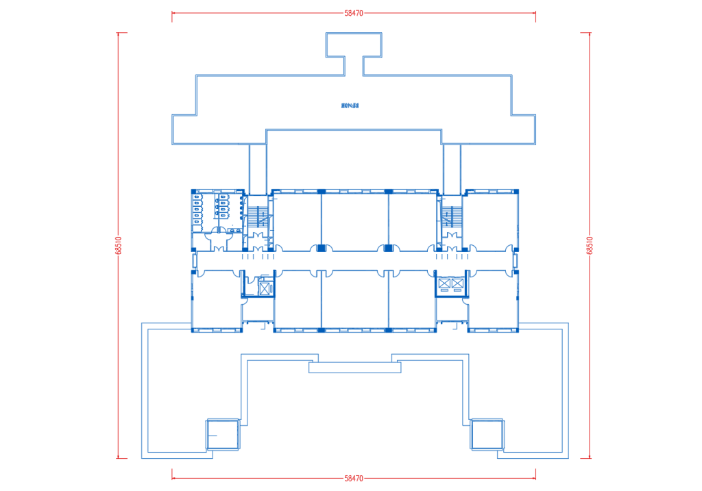
01 某学生活动中心
![图片[1]-专题:教育建筑设计(二)——案例01 - 优集之狐-优集之狐](https://www.ujzhu.com/wp-content/uploads/2025/07/1641288409-c81e728d9d4c2f6-1024x648.png)
![图片[2]-专题:教育建筑设计(二)——案例01 - 优集之狐-优集之狐](https://www.ujzhu.com/wp-content/uploads/2025/07/1641288411-eccbc87e4b5ce2f-1024x621.png)
![图片[3]-专题:教育建筑设计(二)——案例01 - 优集之狐-优集之狐](https://www.ujzhu.com/wp-content/uploads/2025/07/1641288412-a87ff679a2f3e71-1024x630.png)
![图片[4]-专题:教育建筑设计(二)——案例01 - 优集之狐-优集之狐](https://www.ujzhu.com/wp-content/uploads/2025/07/1641288413-e4da3b7fbbce234-1024x622.png)
![图片[5]-专题:教育建筑设计(二)——案例01 - 优集之狐-优集之狐](https://www.ujzhu.com/wp-content/uploads/2025/07/1641288414-1679091c5a880fa-1024x630.png)
![图片[6]-专题:教育建筑设计(二)——案例01 - 优集之狐-优集之狐](https://www.ujzhu.com/wp-content/uploads/2025/07/1641288415-8f14e45fceea167-1024x349.png)
![图片[7]-专题:教育建筑设计(二)——案例01 - 优集之狐-优集之狐](https://www.ujzhu.com/wp-content/uploads/2025/07/1641288416-45c48cce2e2d7fb-1024x392.png)
![图片[8]-专题:教育建筑设计(二)——案例01 - 优集之狐-优集之狐](https://www.ujzhu.com/wp-content/uploads/2025/07/1641288416-c9f0f895fb98ab9-1024x355.png)
![图片[9]-专题:教育建筑设计(二)——案例01 - 优集之狐-优集之狐](https://www.ujzhu.com/wp-content/uploads/2025/07/1641288417-d3d9446802a4425-1024x398.png)
![图片[10]-专题:教育建筑设计(二)——案例01 - 优集之狐-优集之狐](https://www.ujzhu.com/wp-content/uploads/2025/07/1641288418-6512bd43d9caa6e-1024x465.png)
![图片[11]-专题:教育建筑设计(二)——案例01 - 优集之狐-优集之狐](https://www.ujzhu.com/wp-content/uploads/2025/07/1641288418-c20ad4d76fe9775-1024x302.png)
02 某大学技术科学楼
![图片[12]-专题:教育建筑设计(二)——案例01 - 优集之狐-优集之狐](https://www.ujzhu.com/wp-content/uploads/2025/07/1637807762-1f0e3dad9990834-19-1024x687.png)
![图片[13]-专题:教育建筑设计(二)——案例01 - 优集之狐-优集之狐](https://www.ujzhu.com/wp-content/uploads/2025/07/1637807762-1f0e3dad9990834-1-1024x679.png)
![图片[14]-专题:教育建筑设计(二)——案例01 - 优集之狐-优集之狐](https://www.ujzhu.com/wp-content/uploads/2025/07/1637807762-1f0e3dad9990834-2-1024x698.png)
![图片[15]-专题:教育建筑设计(二)——案例01 - 优集之狐-优集之狐](https://www.ujzhu.com/wp-content/uploads/2025/07/1637807762-1f0e3dad9990834-3-1024x726.png)
![图片[16]-专题:教育建筑设计(二)——案例01 - 优集之狐-优集之狐](https://www.ujzhu.com/wp-content/uploads/2025/07/1637807762-1f0e3dad9990834-4-1024x722.png)
![图片[17]-专题:教育建筑设计(二)——案例01 - 优集之狐-优集之狐](https://www.ujzhu.com/wp-content/uploads/2025/07/1637807762-1f0e3dad9990834-5-1024x722.png)
![图片[18]-专题:教育建筑设计(二)——案例01 - 优集之狐-优集之狐](https://www.ujzhu.com/wp-content/uploads/2025/07/1637807762-1f0e3dad9990834-6-1024x728.png)
![图片[19]-专题:教育建筑设计(二)——案例01 - 优集之狐-优集之狐](https://www.ujzhu.com/wp-content/uploads/2025/07/1637807762-1f0e3dad9990834-7-1024x717.png)
![图片[20]-专题:教育建筑设计(二)——案例01 - 优集之狐-优集之狐](https://www.ujzhu.com/wp-content/uploads/2025/07/1637807762-1f0e3dad9990834-8-1024x540.png)
![图片[21]-专题:教育建筑设计(二)——案例01 - 优集之狐-优集之狐](https://www.ujzhu.com/wp-content/uploads/2025/07/1637807762-1f0e3dad9990834-9-1024x555.png)
![图片[22]-专题:教育建筑设计(二)——案例01 - 优集之狐-优集之狐](https://www.ujzhu.com/wp-content/uploads/2025/07/1637807762-1f0e3dad9990834-10-1024x526.png)
![图片[23]-专题:教育建筑设计(二)——案例01 - 优集之狐-优集之狐](https://www.ujzhu.com/wp-content/uploads/2025/07/1637807762-1f0e3dad9990834-11-1024x544.png)
![图片[24]-专题:教育建筑设计(二)——案例01 - 优集之狐-优集之狐](https://www.ujzhu.com/wp-content/uploads/2025/07/1637807762-1f0e3dad9990834-12-1024x532.png)
![图片[25]-专题:教育建筑设计(二)——案例01 - 优集之狐-优集之狐](https://www.ujzhu.com/wp-content/uploads/2025/07/1637807762-1f0e3dad9990834-13-1024x555.png)
![图片[26]-专题:教育建筑设计(二)——案例01 - 优集之狐-优集之狐](https://www.ujzhu.com/wp-content/uploads/2025/07/1637807762-1f0e3dad9990834-14-1024x531.png)
![图片[27]-专题:教育建筑设计(二)——案例01 - 优集之狐-优集之狐](https://www.ujzhu.com/wp-content/uploads/2025/07/1637807762-1f0e3dad9990834-15-1024x493.png)
![图片[28]-专题:教育建筑设计(二)——案例01 - 优集之狐-优集之狐](https://www.ujzhu.com/wp-content/uploads/2025/07/1637807762-1f0e3dad9990834-16-1024x475.png)
![图片[29]-专题:教育建筑设计(二)——案例01 - 优集之狐-优集之狐](https://www.ujzhu.com/wp-content/uploads/2025/07/1637807762-1f0e3dad9990834-17-1024x469.png)
![图片[30]-专题:教育建筑设计(二)——案例01 - 优集之狐-优集之狐](https://www.ujzhu.com/wp-content/uploads/2025/07/1637807762-1f0e3dad9990834-18-1024x678.png)
© 版权声明
文章版权归作者所有,未经允许请勿转载。
THE END




















暂无评论内容