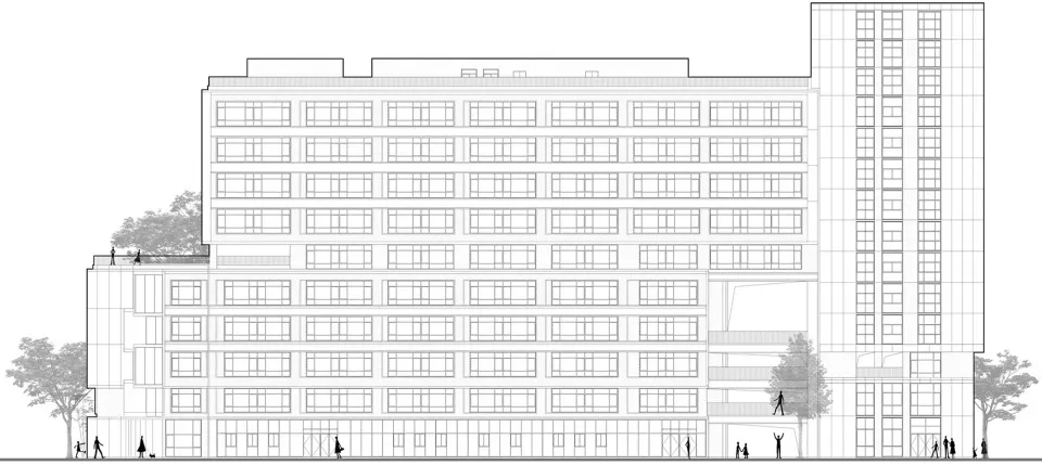
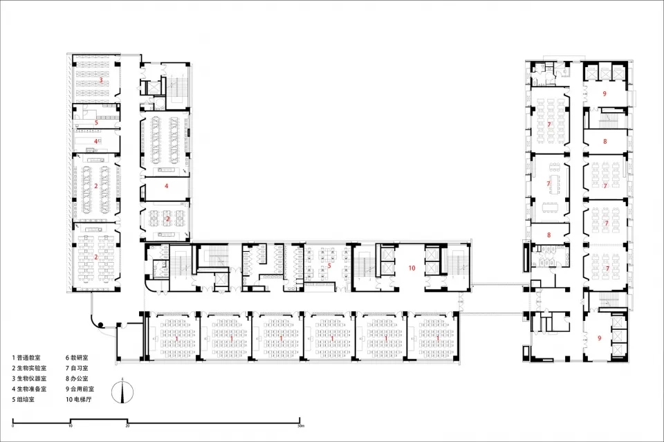
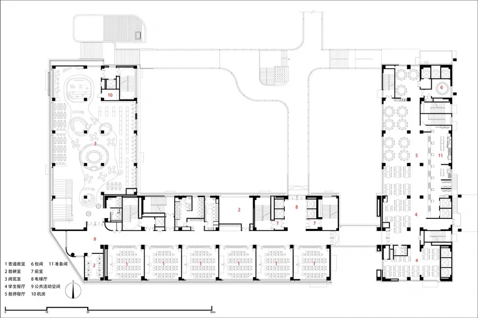
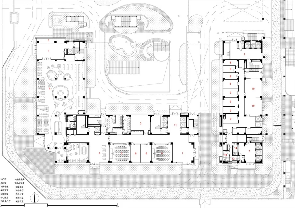
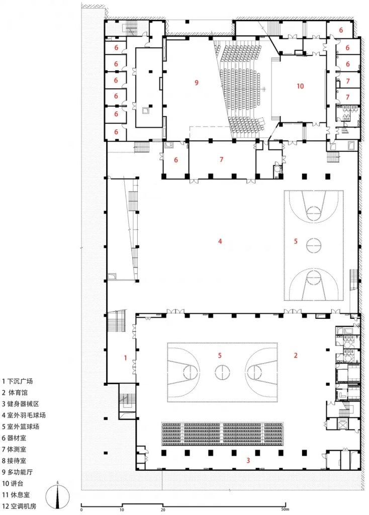
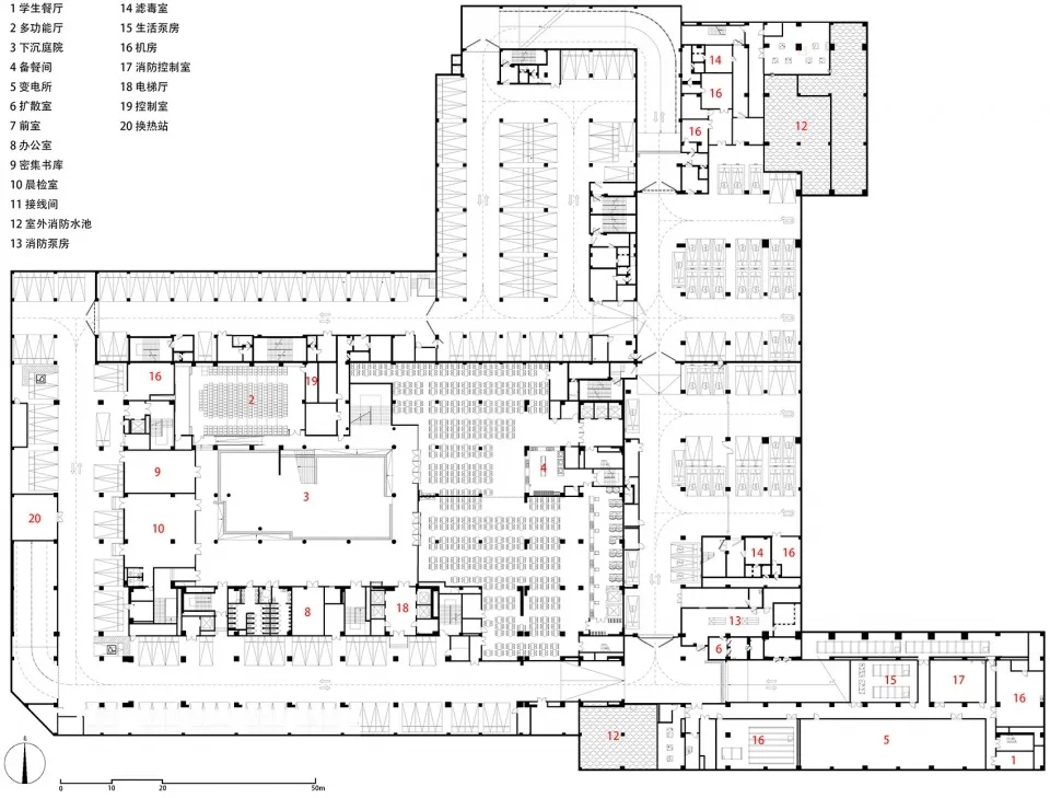
拥有抬升操场的校园(十一)——西安高新第一中学(高中部)改扩建暨社会共享停车场建设项目 中国建筑西北设计研究院银狐1个月前更新关注私信0268 © 版权声明文章版权归作者所有,未经允许请勿转载。THE END校园空间 喜欢就支持一下吧点赞8 分享QQ空间微博QQ好友海报分享复制链接收藏
暂无评论内容