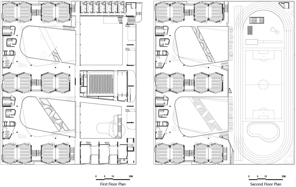
拥有抬升操场的校园(二十八)——高密度城市中的山谷乐园 – 红岭实验小学银狐1个月前更新关注私信0379 © 版权声明文章版权归作者所有,未经允许请勿转载。THE END校园空间 喜欢就支持一下吧点赞9 分享QQ空间微博QQ好友海报分享复制链接收藏
暂无评论内容