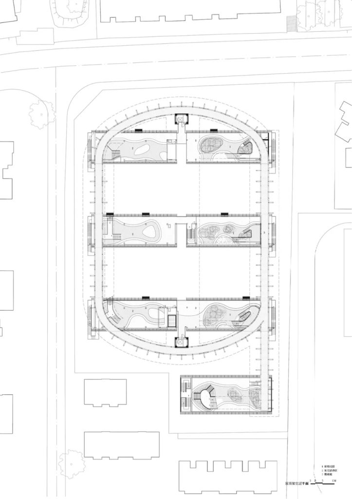
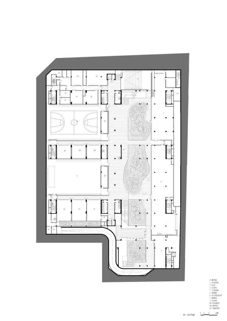
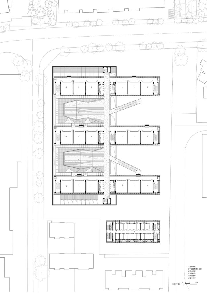
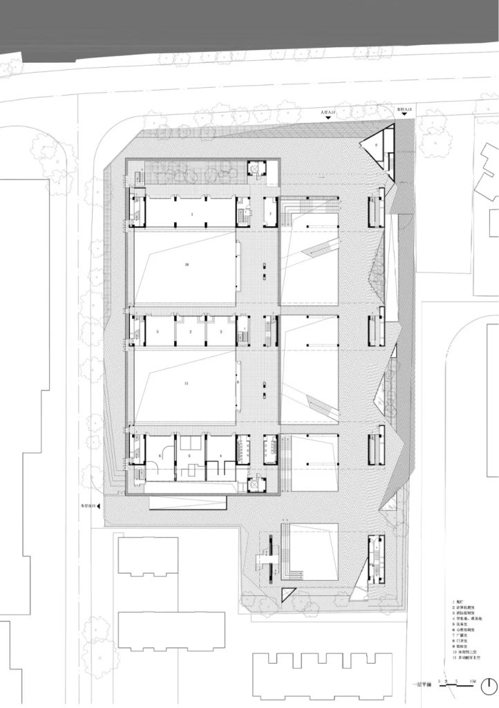
拥有抬升操场的校园(三十一)——空中田径,源计划深圳罗湖高密度校园实践银狐1个月前更新关注私信02312 © 版权声明文章版权归作者所有,未经允许请勿转载。THE END校园空间 喜欢就支持一下吧点赞12 分享QQ空间微博QQ好友海报分享复制链接收藏
暂无评论内容