1 原文:《建筑防烟排烟系统技术标准》GB51251-2017
2 图示:《建筑防烟排烟系统技术标准》15K606
3 解读:《建筑防烟排烟系统技术标准》
4 专题:《建筑防烟排烟系统技术标准》
本备忘录梳理民用建筑须设置排烟的部位,以及排烟措施中补风系统和防烟分区的设计要点,以便参考速查。
目录
一、 设置排烟的场所与部位
1. 歌舞娱乐放映游艺场所
2. 公共建筑内的房间
3. 特殊区域
汽车库、修车库
5. 无窗房间 / 区域
分段独立设置要求
二、.补风系统
核心要求
排烟补风组合方式
三、 防烟分区
划分要求
面积与长度规定
特殊说明
一、设置排烟措施的场所与部位
1. 歌舞娱乐放映游艺场所
▪ 设置在地下或半地下、地上第四层及以上楼层的;
▪ 设置在1~3层且房间总建筑面积> 100㎡的。
![图片[1]-《建筑防烟排烟系统技术标准》GB51251-2017——要素汇编 - 优集之狐-优集之狐](https://www.ujzhu.com/wp-content/uploads/2025/07/f3e032979ad034c28dbfb10ea74aa995.png)
2. 公共建筑内的房间
▪ 建筑面积> 100㎡且经常有人停留的房间;
▪ 建筑面积> 300㎡且可燃物较多的房间。
![图片[2]-《建筑防烟排烟系统技术标准》GB51251-2017——要素汇编 - 优集之狐-优集之狐](https://www.ujzhu.com/wp-content/uploads/2025/07/d4f30117444352dbe9c9f1eb463b600b.png)
3. 特殊区域
▪ 中庭;注:【回廊排烟设施设置要点】 1)周围所有房间均设置排烟设施时:回廊可不用设 ,但商店建筑的回廊必须设 ;2)周围任一个房间未设置排烟设施: 回廊应设排烟设施。无回廊的中庭,与中庭相连的使用房间空间应优先采用机械排烟方式,强化排烟措施。
▪ 民用建筑内长度> 20m 的疏散走道。
![图片[3]-《建筑防烟排烟系统技术标准》GB51251-2017——要素汇编 - 优集之狐-优集之狐](https://www.ujzhu.com/wp-content/uploads/2025/07/e1b85af097287f0dc854537a423b6b3b-1024x460.png)
4. 汽车库、修车库 (《火通》8.2.5)
以下情况可不用设排烟设施:
▪ 敞开式汽车库
▪ 地下一层中,建筑面积<1000㎡的汽车库和修车库
除上述情况外,其余汽车库、修车库均需设置排烟设施。
5. 无窗房间 / 区域
以下情况需设排烟设施(经常有人停留或可燃物较多、无可开启外窗):
▪ 单房间建筑面积>50㎡;
▪ 单房间建筑面积≤ 50㎡,总建筑面积> 200㎡的区域。
注:若区域内每间无窗房间面积≤50㎡,总建筑面积>200㎡时,房间内可不设排烟设施,但房间外公共区需设;区域内同时有>50㎡和≤50㎡的无窗房间,需分别按上述要求设置(总建筑面积不包括房间外公共区域面积)。
![图片[4]-《建筑防烟排烟系统技术标准》GB51251-2017——要素汇编 - 优集之狐-优集之狐](https://www.ujzhu.com/wp-content/uploads/2025/07/02f65a4048d8a052f03253d3d4125a15.png)
6. 分段独立设置要求
机械排烟系统设置规定::(《消通》11.3.3 )
▪ 水平布置:按不同防火分区独立设置。
![图片[5]-《建筑防烟排烟系统技术标准》GB51251-2017——要素汇编 - 优集之狐-优集之狐](https://www.ujzhu.com/wp-content/uploads/2025/07/60b761dc34531cf4830c0fdd98894818-1024x483.png)
▪ 竖向分段(需独立设置):
▫ 公共建筑、工业建筑:高度>50m 时,每段服务高度≤50m;
▫ 住宅建筑:高度>100m 时,每段服务高度≤100m。
![图片[6]-《建筑防烟排烟系统技术标准》GB51251-2017——要素汇编 - 优集之狐-优集之狐](https://www.ujzhu.com/wp-content/uploads/2025/07/45e0cff95a9cd459b3e3369ae40773e4.png)
小贴士:不用设排烟设施部位可简单归纳为:
▪ 无窗房间面积≤50㎡;
▪ 有窗房间≤100㎡;
▪ 走道≤20m 。
二、 补风系统
根据空气流动的原理,必须要有补风才能排出烟气。排烟系统排烟时,补风的主要目的是为了形成理想的气流组织,迅速排除烟气,有利于人员的安全疏散和消防人员的进入。
1. 核心要求
(1)设置补风的部位:(《消通》11.3.6 )
以下情况可不用设补风:
▪ 地上建筑的走道
▪ 地上建筑面积<500㎡的房间
除上述情况外,其余设置排烟系统的场所应能直接从室外引入空气补风。
![图片[7]-《建筑防烟排烟系统技术标准》GB51251-2017——要素汇编 - 优集之狐-优集之狐](https://www.ujzhu.com/wp-content/uploads/2025/07/3942cbb25fb30565174e9caa203953a3.png)
![图片[8]-《建筑防烟排烟系统技术标准》GB51251-2017——要素汇编 - 优集之狐-优集之狐](https://www.ujzhu.com/wp-content/uploads/2025/07/cc2292dd22ce88eac88f1c1e159fa8f7.png)
(2)补风量:不应<排烟量的 50%。(《防排烟标准》4.5.2,
![图片[9]-《建筑防烟排烟系统技术标准》GB51251-2017——要素汇编 - 优集之狐-优集之狐](https://www.ujzhu.com/wp-content/uploads/2025/07/beb41cfbd2f386dda6262f656254d2c8.png)
![图片[10]-《建筑防烟排烟系统技术标准》GB51251-2017——要素汇编 - 优集之狐-优集之狐](https://www.ujzhu.com/wp-content/uploads/2025/07/c5eb23528dc70cafd16cb31d6e493e1e.png)
(3)补风方式:(《防排烟标准》4.5.3)
▪自然补风:可采用疏散外门、手动或自动可开启外窗等;
▪ 机械补风:风机应设置在专用机房内,防火门、窗不得用作补风设施。
(4)风口位置:(《防排烟标准》4.5.4)
▪ 补风口与排烟口在同一空间相邻防烟分区:位置不限;
▪ 补风口与排烟口在同一防烟分区:
▫ 补风口应设在储烟仓下沿以下;
▫ 两者水平距离应≥5m。
![图片[11]-《建筑防烟排烟系统技术标准》GB51251-2017——要素汇编 - 优集之狐-优集之狐](https://www.ujzhu.com/wp-content/uploads/2025/07/7605e021b3fcec762cfecc454ed89f7f.png)
![图片[12]-《建筑防烟排烟系统技术标准》GB51251-2017——要素汇编 - 优集之狐-优集之狐](https://www.ujzhu.com/wp-content/uploads/2025/07/b241db0d1603d0589feab3497c0f9c56.png)
![图片[13]-《建筑防烟排烟系统技术标准》GB51251-2017——要素汇编 - 优集之狐-优集之狐](https://www.ujzhu.com/wp-content/uploads/2025/07/74430d958831a1ed15a85a34cb818c82.png)
2. 排烟补风组合方式
▪ 机械排烟 – 机械补风
▪ 机械排烟 – 自然补风
▪ 自然排烟 – 自然补风
三、 防烟分区
1. 划分要求(《防排烟标准》4.2.1)
设置排烟系统的场所或部位应采用挡烟垂壁、结构梁及隔墙等划分防烟分区。防烟分区不应跨越防火分区,每个防烟分区应设置排烟口。
2. 面积与长度规定(《防排烟标准》4.2.3)
▪ 公共建筑应符合下表要求:
![图片[14]-《建筑防烟排烟系统技术标准》GB51251-2017——要素汇编 - 优集之狐-优集之狐](https://www.ujzhu.com/wp-content/uploads/2025/07/19b85a5cfa4d88c4c7286568467c7a71.png)
▪ 汽车库、修车库:防烟分区的建筑面积不宜超过 2000㎡。防烟分区可采用挡烟垂壁、隔墙或从顶棚下突出不小于 0.5m 的梁划分。(《汽车库、修车库、停车场设计防火规范》GB 50067-2014 8.2.2)
3. 特殊说明
▪ 同一个防烟分区应采用同一种排烟方式。(《消通》11.3.1)
▪ 设置排烟设施的建筑内,敞开楼梯和自动扶梯穿越楼板的开口部应设置挡烟垂壁等设施。(《防排烟标准》4.2.3)
排烟系统设计中,虽由暖通主导提资,但自然排烟窗的设置需建筑专业确定,其合理性直接影响控烟效果。本文梳理民用建筑(不含工业建筑)自然排烟窗的设计要点,作为备忘录供速查。
注:依据《建筑防烟排烟系统技术标准》GB 51251-2017,文中简称《防排烟标准》
目录
一、排烟窗的高度要求1.核心术语(挡烟垂壁、储烟仓、清晰高度)
2.储烟仓与挡烟垂壁设置
3.储烟仓厚度要求
4.最小清晰高度计算
5.自然排烟窗的高度要求
6.排烟窗的水平布置要求二、排烟窗的水平布置要求▪ 通用要求与特殊规定▪ 其他布置细节三、排烟窗的开启设置要求
一. 排烟窗的高度要求: 与储烟仓、清晰高度密切相关
核心术语
要明确排烟窗的高度,需先理解 3 个核心术语:《防排烟标准》2.1.10~2.1.12
▪ 挡烟垂壁:用不燃材料制成,垂直安装在建筑顶棚、梁或吊顶下,能在火灾时形成一定的蓄烟空间的挡烟分隔设施。
▪ 储烟仓:位于建筑空间顶部,由挡烟垂壁、梁或隔墙等形成的用于蓄积火灾烟气的空间。储烟仓高度即设计烟层厚度。
![图片[15]-《建筑防烟排烟系统技术标准》GB51251-2017——要素汇编 - 优集之狐-优集之狐](https://www.ujzhu.com/wp-content/uploads/2025/07/504a5d0c42b294aafc8d2de16045643b.png)
▪ 清晰高度: 烟层下缘至室内地面的高度。
![图片[16]-《建筑防烟排烟系统技术标准》GB51251-2017——要素汇编 - 优集之狐-优集之狐](https://www.ujzhu.com/wp-content/uploads/2025/07/0aa0990d3b536e57aee55b5ded8b5f6f.png)
2. 储烟仓与挡烟垂壁设置(《防排烟标准》4.2.2)▪ 无吊顶或通透式吊顶:排烟设计净高算至板底,储烟仓厚度从板底向下计算;▪ 非通透式吊顶(开孔率≤25%):排烟设计净高算至吊顶底,储烟仓厚度从吊顶底向下计算,吊顶内空间高度不计入储烟仓厚度。
![图片[17]-《建筑防烟排烟系统技术标准》GB51251-2017——要素汇编 - 优集之狐-优集之狐](https://www.ujzhu.com/wp-content/uploads/2025/07/c69eff0ecf860436bb357d8f5933f39a.png)
3. 储烟仓厚度要求:(《防排烟标准》4.6.2)▪ 自然排烟时,厚度不小于空间净高的 20%,且最低不得少于 500mm。
例:某空间净高 5m,20% 为 1m(≥500mm),则储烟仓厚度按 1m 设计。
▪ 储烟仓底部距地面高度,必须大于安全疏散所需的最小清晰高度。
![图片[18]-《建筑防烟排烟系统技术标准》GB51251-2017——要素汇编 - 优集之狐-优集之狐](https://www.ujzhu.com/wp-content/uploads/2025/07/bae232ea9c2fb9076987e54b189d1806.png)
4. 最小清晰高度计算(《防排烟标准》4.6.9)▪ 空间净高≤3m:最小清晰高度≥净高的 1/2;▪ 空间净高>3m:按公式计算 Hq=1.6+0.1H’
(Hq——最小清晰高度(m),H’对于单层空间,取排烟空间的建筑净高(m);对于多层空间,取最高疏散层的层高(m))。小贴士:▪ 按满足疏散净高通行的清晰高度计算室内净高为2.625m:按疏散净高2.1m÷80% (储烟仓占空间净高20%)计算得出。且2.625净高储烟仓20%厚度为0.525m≥500mm,符合排烟要求。满足疏散净高便满足了最小清晰高度。
▪>3m室内空间净高H与与挡烟垂壁高度h要求可归纳如下:
H>3.0时,Hq与2.1两者之间取较大值 :
3.0<H≤5.0, 0.2H<h≤H-2.1(Hq≤2.1m)
H>5.0, 0.2H<h≤H-Hq(Hq>2.1m)
注:空间净高确定:▪ 对于平顶和锯齿形的顶棚,空间净高为从顶棚下沿到地面的距离。▪ 对于斜坡式的顶棚,空间净高为从排烟开口中心到地面的距离。▪ 对于有吊顶的场所,其净高应从吊顶处算起;设置格栅吊顶的场所,其净高应从上层楼板下边缘算起(格栅吊顶通常开孔率较高,属于通透式吊顶范畴)。条文说明:对于多个楼层组成的高大空间,最小清晰高度同样也是针对某一个单层空间提出的,往往也是连通空间中同一防烟分区中最上层计算得到的最小清晰高度。但在这种情况下的燃料面到烟层底部的高度Z是从着火的那一层起算。
![图片[19]-《建筑防烟排烟系统技术标准》GB51251-2017——要素汇编 - 优集之狐-优集之狐](https://www.ujzhu.com/wp-content/uploads/2025/07/1f7d46428b81f41541ed7fa6f667908f.png)
5. 自然排烟窗的高度要求(《防排烟标准》4.3.3-1)▪ 净高≤3m:排烟窗需位于净高 1/2 以上;
![图片[20]-《建筑防烟排烟系统技术标准》GB51251-2017——要素汇编 - 优集之狐-优集之狐](https://www.ujzhu.com/wp-content/uploads/2025/07/0bde3d072fdd0e415f527c4d8f1c9680.png)
▪ 净高>3m:需设置在储烟仓内。小贴士:净高>3m,排烟窗设置最小高度取Hq 与 2.1m (防火疏散净高要求)两者较大值。
二. 排烟窗的水平布置要求 (《防排烟标准》4.3.2~5)
▪ 通用要求:防烟分区内任意一点到最近排烟窗的水平距离≤30m。
![图片[21]-《建筑防烟排烟系统技术标准》GB51251-2017——要素汇编 - 优集之狐-优集之狐](https://www.ujzhu.com/wp-content/uploads/2025/07/6914b587605ddaa62d9ac6516bdfee91.png)
▪ 特殊规定:
▫ 公共建筑:空间净高≥6m,且有自然对流条件时,可放宽至≤37.5m。
![图片[22]-《建筑防烟排烟系统技术标准》GB51251-2017——要素汇编 - 优集之狐-优集之狐](https://www.ujzhu.com/wp-content/uploads/2025/07/6f6cd10a55482b3566a199f2ef5d4cbe.png)
▪ 其他细节:
▫ 房间面积≤200㎡时,排烟窗开启方向不限;
▫ 排烟窗宜分散均匀布置,每组长度不宜>3.0m;
▫ 防火墙两侧的排烟窗,最近边缘水平距离不应<2.0m。
![图片[23]-《建筑防烟排烟系统技术标准》GB51251-2017——要素汇编 - 优集之狐-优集之狐](https://www.ujzhu.com/wp-content/uploads/2025/07/188a46207c9099937987b3ce9e275a00.png)
三. 排烟窗的开启设置要求 (《防排烟标准》4.3.6)
▪ 需设置手动开启装置;
▪ 高位不便直接开启的排烟窗,需在距地面1.3m~1.5m 处设置手动开启装置;
![图片[24]-《建筑防烟排烟系统技术标准》GB51251-2017——要素汇编 - 优集之狐-优集之狐](https://www.ujzhu.com/wp-content/uploads/2025/07/7118e206e2dde8ea3c644724b8f2447f.png)
![图片[25]-《建筑防烟排烟系统技术标准》GB51251-2017——要素汇编 - 优集之狐-优集之狐](https://www.ujzhu.com/wp-content/uploads/2025/07/cdde5c8ac99fb5ada5782e53b3078074.png)
▪ 净空高度>9m 的中庭、建筑面积>2000㎡的营业厅 / 展览厅 / 多功能厅等,还需设置集中手动开启装置和自动开启设施;
▪ 外墙上的单开式自动排烟窗宜采用下悬外开式;(《防排烟标准》4.3.3-2)
▪ 屋面上的自动排烟窗宜采用对开式或百叶式。(《防排烟标准》4.3.3-2)
在建筑消防安全中,楼梯间防烟设计至关重要,直接关系火灾时人员疏散安全。以下整理防烟设计要点,以便速查。
目录
1、防烟设计相关术语
2、应采取防烟措施的部位
3、防烟系统的设置规定
3.1 防烟楼梯间及相关前室的防烟设置
3.2 封闭楼梯间的防烟设置
4、防烟系统的窗户设置要求
1、防烟设计相关术语
(依据《防排烟标准》2.1.1、2.1.19~2.1.21)
● 防烟系统:通过自然通风防止火灾烟气在楼梯间、前室、避难层(间)等空间积聚,或用机械加压送风阻止烟气侵入这些空间的系统,分为自然通风系统和机械加压送风系统。
● 独立前室:仅与一部疏散楼梯相连。
● 共用前室:(居住建筑)剪刀楼梯间的两个楼梯间共用同一个前室。
● 合用前室:防烟楼梯间前室与消防电梯前室合用。
![图片[26]-《建筑防烟排烟系统技术标准》GB51251-2017——要素汇编 - 优集之狐-优集之狐](https://www.ujzhu.com/wp-content/uploads/2025/07/bc151041ca616d20ce8288a3fce113bd.png)
2、应采取防烟措施的部位
依据《火通》8.2.1,以下部位必须采取防烟措施:● 封闭楼梯间;● 防烟楼梯间及其前室;● 消防电梯的前室或合用前室;● 避难层、避难间等(本文不涉及);● 避难走道的前室,地铁工程中的避难走道。(本文不涉及)
3、防烟系统的设置规定
3.1 防烟楼梯间及相关前室的防烟设置
3.1.1 机械加压送风系统的适用场景
● 建筑高度>100m 住宅建筑,>50m 公共建筑、工业建筑,防烟楼梯间及其前室、消防电梯的前室和合用前室应设置机械加压送风系统。(《消通》11.2.1)
● 建筑地下部分的防烟楼梯间前室及消防电梯前室,当无自然通风条件或自然通风不符合要求时,应采用机械加压送风系统。(《防排烟标准》3.1.4)
释疑:
地下室部分楼梯间前室一般都无自然通风条件,规范是否是指一定要给楼梯间前室加压?是否可以仅在楼梯间加压而前室不加压?
当符合《防排烟标准》3.1.5-1(本文第 3)条)中一个门的独立前室时,可仅对楼梯间送风。符合这种情况时,其前室虽然没有设置加压送风,实际上也属于在加压送风系统的防护之下。(摘自消防资源网:【专家答疑之一】关于《建筑防烟排烟系统技术标准》GB51251-2017的若干问题。)
3.1.2 自然通风系统的适用场景及替代方案
● 建筑高度≤50m 公共建筑、工业建筑,≤100m 住宅建筑,其防烟楼梯间、独立前室、共用前室、合用前室(除共用前室与消防电梯前室合用外 )及消防电梯前室应采用自然通风系统。当不能设置自然通风系统时,应采用机械加压送风系统。(《防排烟标准》3.1.3)
3.1.3 不同通风方式的组合要求
根据楼梯间与前室的通风方式(自然通风 / 不通风 / 机械加压),需满足以下规定:
1)楼梯间采用自然通风:
● 优先搭配前室自然通风
● 若前室不通风:
○ 需满足:当独立前室、共用前室及合用前室的机械加压送风口设置在前室的顶部或正对前室入口的墙面时,楼梯间可采用自然通风系统。否则楼梯间应采用机械加压送风系统。(《防排烟标准》3.1.3-2)
![图片[27]-《建筑防烟排烟系统技术标准》GB51251-2017——要素汇编 - 优集之狐-优集之狐](https://www.ujzhu.com/wp-content/uploads/2025/07/36e266e21f5145da31b402a0abf82e77-1024x569.png)
○ 特殊场景:当防烟楼梯间在裙房高度以上部分采用自然通风时,若裙房的独立前室、共用前室及合用前室不具备自然通风条件,裙房部分的前室应设置机械加压送风系统。(《防排烟标准》3.1.3-3)
2)楼梯间不通风且不设机械防烟时(仅适用于独立前室或合用前室,不含共用前室):(《防排烟标准》3.1.3-1)
需满足以下条件之一:
● 前室采用全敞开阳台或凹廊;
![图片[28]-《建筑防烟排烟系统技术标准》GB51251-2017——要素汇编 - 优集之狐-优集之狐](https://www.ujzhu.com/wp-content/uploads/2025/07/9c0f1765e234f2104f387e8fa328d749-1024x422.png)
● 前室有两个及以上不同朝向可开启外窗,独立前室每个外窗面积≥2.0m²,合用前室每个外窗面积≥3.0m²。
![图片[29]-《建筑防烟排烟系统技术标准》GB51251-2017——要素汇编 - 优集之狐-优集之狐](https://www.ujzhu.com/wp-content/uploads/2025/07/67c5774e3452aa58d86f9ba216ceb8d8.png)
3)楼梯间不通风但设置机械防烟时:
● 优先搭配前室自然通风
● 若前室不通风:(《防排烟标准》3.1.5)
○ 独立前室:当仅有一个门与走道或房间相通时,可仅在楼梯间设置机械加压送风系统;若为多门时,则楼梯间与前室分别设置机械加压送风系统。
![图片[30]-《建筑防烟排烟系统技术标准》GB51251-2017——要素汇编 - 优集之狐-优集之狐](https://www.ujzhu.com/wp-content/uploads/2025/07/f5224d98ed183a3af7e41d5bfd37982f.png)
○ 合用前室时,楼梯间与前室应分别设机械加压送风系统。
○ 剪刀楼梯间时,两个楼梯间及前室的机械加压送风系统应分别独立设置。
![图片[31]-《建筑防烟排烟系统技术标准》GB51251-2017——要素汇编 - 优集之狐-优集之狐](https://www.ujzhu.com/wp-content/uploads/2025/07/12e1a6d1c2b6c6b59047b24a3ae51652.png)
4)“三合一前室+ 剪刀梯”场景:共用前室与消防电梯前室合用(即“三合一”前室)时(详上图右),应采用机械加压送风方式(《防排烟标准》3.1.3);若对应的剪刀楼梯间满足《防排烟标准》第 3.2.1 条(见下篇)的自然通风条件,且“三合一”前室加压送风口的设置符合《防排烟标准》第 3.1.3-2 条(本文 第 1)条)时,该剪刀梯可采用自然通风。(摘自消防资源网:【专家答疑之一】关于《建筑防烟排烟系统技术标准》GB51251-2017的若干问题。)
![图片[32]-《建筑防烟排烟系统技术标准》GB51251-2017——要素汇编 - 优集之狐-优集之狐](https://www.ujzhu.com/wp-content/uploads/2025/07/57510f1a0841acb4595566fbbb66a56a.png)
3.2 封闭楼梯间的防烟设置
● 应采用自然通风系统,无法满足时应设机械加压送风。(《防排烟标准》3.1.6)
![图片[33]-《建筑防烟排烟系统技术标准》GB51251-2017——要素汇编 - 优集之狐-优集之狐](https://www.ujzhu.com/wp-content/uploads/2025/07/54b7e3f470088bc332746acf20debe40.png)
● 地下仅为一层且不与地上共用的封闭楼梯间(最底层地坪与室外出入口地坪高差≤10m),首层设≥1.2m² 可开启外窗 / 疏散门,可不设机械加压。(《防排烟标准》3.1.6)
![图片[34]-《建筑防烟排烟系统技术标准》GB51251-2017——要素汇编 - 优集之狐-优集之狐](https://www.ujzhu.com/wp-content/uploads/2025/07/52127c9d5c1ad83ab418d6d0807741ad.png)
![图片[35]-《建筑防烟排烟系统技术标准》GB51251-2017——要素汇编 - 优集之狐-优集之狐](https://www.ujzhu.com/wp-content/uploads/2025/07/1a6214bb8c3881dc177e9ec75b474f0e-1024x617.png)
● 释疑:
◌ 地下与地上楼梯在同一位置,上部与地下梯段用防火隔墙且隔墙上不设门,视为不共用楼梯间。
![图片[36]-《建筑防烟排烟系统技术标准》GB51251-2017——要素汇编 - 优集之狐-优集之狐](https://www.ujzhu.com/wp-content/uploads/2025/07/6cd072e096d1dbda7041499d062b926d.png)
◌ 地下一、两层(且室内外高差≤10m)楼梯间,采用自然通风的,其可开启外窗/开口总面积≥2㎡,含最高处设置的≥1.0m²窗/开口。
◌ 地下三层及以上(或室内外高差>10m),除贴邻下沉式广场等室外空间布置、层数≤3层且满足自然通风要求的情况外,应采取机械加压送风的防烟方式。(《防排烟审查》第12页、《浙消》7.1.7),各地细则有所不同。
4、防烟系统的窗户设置要求
4.1 自然通风窗设置
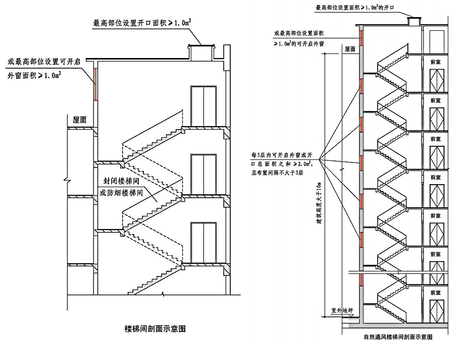
● 楼梯间:最高处应设≥1.0m² 可开启外窗/开口;高度>10m 时,尚应每5层外墙设总面积≥2.0m² 可开启外窗/开口,间隔≤3 层(注:连续层数≤2层)。(《防排烟标准》3.2.1)注:当建筑高度≤10m时,对于地上楼梯间,除最高部位外,可不在外墙上增设可开启外窗/开口。
![图片[37]-《建筑防烟排烟系统技术标准》GB51251-2017——要素汇编 - 优集之狐-优集之狐](https://www.ujzhu.com/wp-content/uploads/2025/07/d05b22e8720f6ec1c1d89621c2840c05.png)
● 防烟前室、消防电梯前室:可开启外窗 / 开口≥2.0m² ;共用、合用前室≥3.0m² 。(《消通》11.2.3:)
![图片[38]-《建筑防烟排烟系统技术标准》GB51251-2017——要素汇编 - 优集之狐-优集之狐](https://www.ujzhu.com/wp-content/uploads/2025/07/0d5a25895999bab316eaf70b550c0bd8-1024x608.png)
● 释疑:外窗面积2m²/3m²是有效面积还是指外窗面积?
◌ 前室开窗是指开窗面积/开口面积。避难间开窗是有效面积。(摘自消防资源网:【专家答疑之一】)
◌ 各地规定有所不同,如《浙消》7.1.4:其可开启外窗尚应按《防排烟标准》第 4.3.5 条(具体计算方法可参考该文《排烟设计须知:自然排烟窗的面积如何计算?》)的规定核算其开启的有效面积,且≥外窗面积的1/3。
4.2 机械加压系统的窗设置
● 应急排烟窗(《火通》2.2.4):设机械加压送风且靠外墙 / 可直通屋面的封闭楼梯间、防烟楼梯间,顶部或最上一层外墙应设≥1.0㎡常闭式应急排烟窗(带手动和联动开启)。
● 固定窗:靠外墙的防烟楼梯间,尚应在其外墙上每5层内设置总面积≥2m²的固定窗。(《防排烟标准》3.3.11)
5、其他规定
● 机械加压送风系统(《防排烟标准》3.3.5)
◌ 位置:送风机应设于专用机房内,送风机及进风口宜在系统下部;
◌ 风口布局:送风机进风口不应与排烟风机出风口同面;确有困难需分开布置时,竖向布置时,垂直间距≥6.0m(进风口在排烟出口下方),水平布置时,水平间距≥20.0m。
● 释疑:屋面加压风机进风口与排烟风机出风口若在不同朝向,建议水平距≥10m、垂直距≥3m。(摘自消防资源网:【专家答疑之二】),各地细则有所不同




















- 最新
- 最热
只看作者