专题:设备管井、管沟

AI智能摘要
高层建筑设备管井设置需满足不同专业的规范要求。强电井与弱电井操作距离分别不小于0.8 米与 0.6 米,需考虑设备数量、进出线和检修空间。南方电网规定电表箱操作距离为 800mm,电井最小尺寸为 1600x1200mm。水暖管道井受空间限制影响施工难度,往往需进行二次深化设计。水表安装有 1200mm 最小要求,水管井门考虑装修后实际宽度需小于 600mm。电缆沟改进需采用圆钢焊接处理以避免盖板铺设不平。
— 此摘要由AI分析文章内容生成,仅供参考。
一、高层建筑设备管井的设置和一般要求

南方电网常用电表外形尺寸

  • 单相1位表箱尺寸(宽x高x厚):220x430x110
  • 单相2位表箱尺寸(宽x高x厚):525x740x115
  • 单相4位表箱尺寸(宽x高x厚):715x810x170
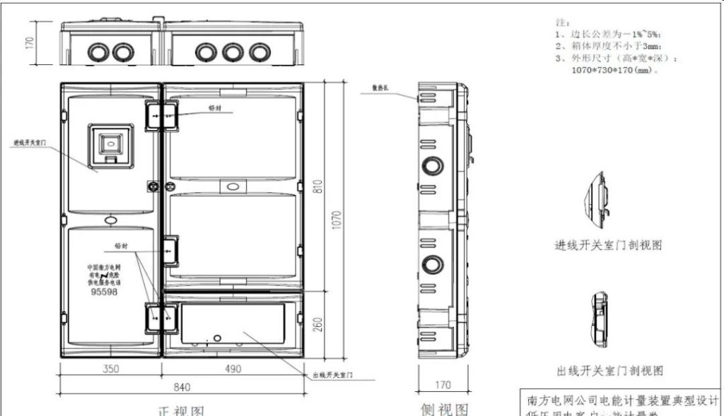
  • 单相6位表箱尺寸(宽x高x厚):840x1070x170
  • 单相12位表箱尺寸(宽x高x厚):1330x10701x170

注:15年后南方电网仅采用以上单相非金属电表。

电缆井尺寸要求

供电局要求电表箱前操作距离为800mm,如下图示意:

长边尺寸:普通用电桥架或母线300mm,电表箱900mm,消防桥架400mm,共1600mm;

短边尺寸:电表箱按200mm考虑,表前800mm,考虑电表箱对面设备安装占200mm(尤其是电井短边开门),共1200mm。则该地区电井尺寸需1600mmx1200mm

图片[1]-专题:设备管井、管沟 - 优集之狐-优集之狐

强电井、弱电井

  • 电网的电表尺寸更新
  • 各地区电表安装位置要求不同
  • 电井内设备增加(如应急照明箱,住宅母线上限1000A)
  • 现场安装箱体高度超过2.2m,低于0.6米
  • 强电井标准应随市场发展调整。
图片[2]-专题:设备管井、管沟 - 优集之狐-优集之狐

电表箱

图片[3]-专题:设备管井、管沟 - 优集之狐-优集之狐
图片[4]-专题:设备管井、管沟 - 优集之狐-优集之狐
图片[5]-专题:设备管井、管沟 - 优集之狐-优集之狐

规范要求

图片[6]-专题:设备管井、管沟 - 优集之狐-优集之狐

1.《民用建筑电气设计标准》GB51348-2019

  • 8.11.5  竖井大小除应满足布线间隔及端子箱、配电箱布置所必需尺寸外,进人竖井宜在箱体前留有不小于0.8m的操作距离。当建筑物平面受限制时,可利用公共走道满足操作距离的要求,但竖井的进深不应小于0.6m。
  • 条文解释:电气竖井的大小应根据线路急设备的布置确定,而且必须充分考虑布线施工及设备运行的操作、维护距离。


2. 《民用建筑设计统一标准》GB 50352-2019内的相关内容

8.3.5条文解释     高层建筑电气竖井在利用通道作为检修面积时,电气竖井的净宽度不宜小于800mm,弱电竖井的净宽度不宜小于600mm。多层建筑弱电竖井在利用通道作为检修面积时,竖井的净宽度不宜350mm。


3.《住宅建筑电气设计规范》JGJ242-2011内的相关内容

  • 7.4.4 电气竖井的面积应根据设备的数量、进出线的数量、设备安装、检修等因素确定。高层住宅建筑利用通道作为检修面积时,电气竖井的净宽度不宜小于0.8m
  • 15.3.2 多层住宅建筑弱电系统设备宜集中设置在一层或地下一层弱电间(电信间)内,弱电竖井在利用通道作为检修面积时,弱电竖井的净宽度不宜小于0.35m
  • 15.3.3  7层及以上的住宅建筑弱电系统设备的安装位置应由设计人员确定。弱电竖井在利用通道作为检修面积时,弱电竖井的净宽度不宜小于0.6m

住宅竖井提资

图片[7]-专题:设备管井、管沟 - 优集之狐-优集之狐
图片[8]-专题:设备管井、管沟 - 优集之狐-优集之狐

公建竖井提资

图片[9]-专题:设备管井、管沟 - 优集之狐-优集之狐

种类:风管井、水管井、其他管井。

设置要求:

1.位置:宜在每个区的中心部位,且在机房附近,直通不宜拐弯。高层建筑为筒体结构,因每层均有进出总管,需墙上开大洞,应与结构提前配合,有些最好将管井设在结构的核心外。

2.种类分为有检修、无检修2种。
有检修:除管道外,检修空间最小应有600mm
无检修:一面为空心砖砌或钢丝网抹灰,遇到检修时将墙拆除。

3.安装空间:风管边距墙的尺寸,对于小风管为150mm,对于大风管应预留150~300mm。

4.公共走道一侧。

5.其他:与电井相邻考虑防水处理,尽量避免。

6.风井长宽比问题。(1:4~6)

加压送风

图片[10]-专题:设备管井、管沟 - 优集之狐-优集之狐

住宅核心筒水井

建筑高度不大于100米的高层住宅建筑,水管井内一般有消火栓箱一个,DN100消防立管一条,DN80的给水管3条,DN50给水支管一条,DN20水表组4~6套,DN100排水管一条,地漏一个。

公建核心筒水井

建筑高度不大于100米的高层住宅建筑,水管井内一般有消火栓箱一个,DN100消防立管一条,DN80的给水管3条,DN50给水支管一条,DN20水表组4~6套,DN100排水管一条,地漏一个。

图片[11]-专题:设备管井、管沟 - 优集之狐-优集之狐

公建核心筒湿式报警阀间

根据《建筑设计防火规范》GB 50016-2014(2018年版)中第8.3.3条规定,需设置自动喷淋系统;

根据《自动喷水灭火系统设计规范》GB 50084-2017中第6.2.3一个报警阀组控制的洒水喷头数应符合下列规定:
1 湿式系统、预作用系统不宜超过800只;则公建需在塔楼考虑增加设置报警阀间

如下所示,根据消防需要部分楼层为报警阀间

图片[12]-专题:设备管井、管沟 - 优集之狐-优集之狐

非报警阀间楼层为保洁间

图片[13]-专题:设备管井、管沟 - 优集之狐-优集之狐

水表最小安装尺寸

自来水安装实际操作时要求:水表前后直管段长度分别为表前10D(D为管路直径)和表后5D。水表直线段如图示意:

图片[14]-专题:设备管井、管沟 - 优集之狐-优集之狐

结论:水表组最小安装尺寸为1110mm,考虑实际施工,水表组安装最小尺寸1200mm。

图片[15]-专题:设备管井、管沟 - 优集之狐-优集之狐

注:
⑴适用于普通住宅高度不超100米。
⑵管井净空尺寸为1500X800,面积为1.2平方米

以某项目为例,水管井尺寸为1100X1050,面积为1.15平方米。

管井内布置详见下图

图片[16]-专题:设备管井、管沟 - 优集之狐-优集之狐
图片[17]-专题:设备管井、管沟 - 优集之狐-优集之狐
图片[18]-专题:设备管井、管沟 - 优集之狐-优集之狐
图片[19]-专题:设备管井、管沟 - 优集之狐-优集之狐
图片[20]-专题:设备管井、管沟 - 优集之狐-优集之狐

1)自来水公司严格执行《用户生活给水系统设计、施工及验收规范》,水表组预留1200mm。

2)消火栓箱安装应考虑与装修的配合,如墙面挂石,消火栓箱的净空尺寸为350mm;贴砖为300mm。

3)水管井门600mm宽,配合装修贴砖或挂石时,门轴内装,门宽小于600mm。

下图为某项目水管井门600mm装修施工后的照片,完成后门仅有370mm宽。

图片[21]-专题:设备管井、管沟 - 优集之狐-优集之狐
图片[22]-专题:设备管井、管沟 - 优集之狐-优集之狐

标准化水管井的尺寸只是项目中的一个特例,且已不能满足目前各地区的安装要求。

由于受消防箱、管井门位置、水表组安装尺寸、核心筒剪力墙布置等的限制,当项目的管井尺寸遇到不标准时,管井面积不能作为管井的控制指标。

二、管道井、电井、沟类工程的做法(图文并茂)

说到管道井、电井、沟类工程的做法,想必大部分从事电气行业多年的电气人都不陌生了,但是到目前仍然有部分电气人员对这方面的知识还是很欠缺的。水暖管道井是实现建筑本体使用功能和工程创优的重要部位,采取合理的施工技术,既能保证施工质量,又能降低生产成本,同时也可方便日后物业的管理维护。针对目前各类建筑内水暖管道井空间狭小,造成水暖管道井的施工管理难度加大,严重影响水暖管道井的施工质量的问题。

图片[23]-专题:设备管井、管沟 - 优集之狐-优集之狐

现在住宅中,为了降低公摊面积,减少小区业主的经济压力,对管井,电井等公共功能室的面积进行了严格控制。同时,随着社会发展,小区业主对住宅功能要求日益提高,管井,电井内的管线种类日益增多。由此带来的矛盾也日趋尖锐,其中管道井内管线排布,施工的压力尤为明显。那么管道井、电井、沟类工程都有哪些做法呢?下面本文以图文方式给大家详细地讲一讲。

图片[24]-专题:设备管井、管沟 - 优集之狐-优集之狐

管道井、电井:必须暗处明做,不留死角,做到大小房间一个样,明暗处处有亮点;管道套管必须封堵,管道、桥架、母线穿墙、板根部必须收口。

图片[25]-专题:设备管井、管沟 - 优集之狐-优集之狐

▲电井、管井施工样板:主体预埋施工前应做好策划进行二次深化排列。


▼管道井二次深化设计排列图

图片[26]-专题:设备管井、管沟 - 优集之狐-优集之狐
图片[27]-专题:设备管井、管沟 - 优集之狐-优集之狐

▲电井二次深化设计排列图

▼管道井二次深化设计排列图

图片[28]-专题:设备管井、管沟 - 优集之狐-优集之狐
图片[29]-专题:设备管井、管沟 - 优集之狐-优集之狐

▲管道井内安装效果

▼电井内排列安装效果

图片[30]-专题:设备管井、管沟 - 优集之狐-优集之狐
图片[31]-专题:设备管井、管沟 - 优集之狐-优集之狐

1、电井内桥架、母线穿楼板收口
▼电井内桥架、母线穿楼板收口样板

图片[32]-专题:设备管井、管沟 - 优集之狐-优集之狐
图片[33]-专题:设备管井、管沟 - 优集之狐-优集之狐
图片[34]-专题:设备管井、管沟 - 优集之狐-优集之狐

2、管道穿墙、板根部收口▼

图片[35]-专题:设备管井、管沟 - 优集之狐-优集之狐
图片[36]-专题:设备管井、管沟 - 优集之狐-优集之狐
图片[37]-专题:设备管井、管沟 - 优集之狐-优集之狐
图片[38]-专题:设备管井、管沟 - 优集之狐-优集之狐
图片[39]-专题:设备管井、管沟 - 优集之狐-优集之狐

3、电梯机房内洞口收口▼

图片[40]-专题:设备管井、管沟 - 优集之狐-优集之狐
图片[41]-专题:设备管井、管沟 - 优集之狐-优集之狐

▲钢丝绳洞口收口

▼地面桥架安装

图片[42]-专题:设备管井、管沟 - 优集之狐-优集之狐
图片[43]-专题:设备管井、管沟 - 优集之狐-优集之狐

▲电梯机房

图片[44]-专题:设备管井、管沟 - 优集之狐-优集之狐

▲设备房排水沟、水泵四周排水沟样板

▼样板做法

图片[45]-专题:设备管井、管沟 - 优集之狐-优集之狐
图片[46]-专题:设备管井、管沟 - 优集之狐-优集之狐

工程实景:设备房如采用细混土作为面层,为保护主排水沟沟边阳角在使用中不破损,可采用施工中块材边角料进行施工过渡。排水沟周边块材先冲筋施工,再进行地面砼面层施工,确保块材与混凝土间无缝。

图片[47]-专题:设备管井、管沟 - 优集之狐-优集之狐
图片[48]-专题:设备管井、管沟 - 优集之狐-优集之狐
图片[49]-专题:设备管井、管沟 - 优集之狐-优集之狐
图片[50]-专题:设备管井、管沟 - 优集之狐-优集之狐

▲设备四周排水沟做法
设备四周U-PVC排水沟先冲筋埋设,再进行地面面层施工。U-PVC管预埋时与混凝土接触面必须预先打磨,确保施工后不空鼓。

▼设备房应用整体效果

图片[51]-专题:设备管井、管沟 - 优集之狐-优集之狐
图片[52]-专题:设备管井、管沟 - 优集之狐-优集之狐
图片[53]-专题:设备管井、管沟 - 优集之狐-优集之狐

▲设备四周地上采用石材或面砖施工的小排水沟

▼电缆沟样板

图片[54]-专题:设备管井、管沟 - 优集之狐-优集之狐
图片[55]-专题:设备管井、管沟 - 优集之狐-优集之狐
图片[56]-专题:设备管井、管沟 - 优集之狐-优集之狐

问题:
1、以往按图集电缆沟施工时,花纹盖板安装后高出配电室地面,存在高地差。
2、盖板与地面平齐施工时,采用水泥砂浆阳角收口,易破碎,存在破损。

改进策划做法:为避免地沟花纹盖板铺设后与地面造成不平,宜在电缆沟侧面埋设角钢时内侧面焊接中6圆钢,地面面层与圆钢上部平齐。角钢与圆钢焊接时应采用地面侧单面焊,双面焊容易引起盖板铺设不平整

▼电缆沟细部做法

图片[57]-专题:设备管井、管沟 - 优集之狐-优集之狐
图片[58]-专题:设备管井、管沟 - 优集之狐-优集之狐

© 版权声明
THE END
喜欢就支持一下吧
点赞5 分享
评论 共13条

请登录后发表评论

    • 头像IronVanguard0
    • 头像密林独行者0
    • 头像智能幽灵0
    • 头像射手逐风0
    • 头像鬼新郎0
    • 头像月影流光0
    • 头像王五0
    • 头像未来幽灵0
    • 头像杏衫含春0
    • 头像夜露微寒0
    • 头像白虹生0
    • 头像枸杞0
    • 头像血影煞0